Your Partner in Real Estate.
Tenant Portal
Contact Us
Call: 630-250-9700
Toggle navigation
Portfolio
Office
Industrial
Retail
Built to Suit
Multi-Family/Residential
Expertise
Development
Property Management
Leasing & Marketing
Acquisition Coordination
Sustainability
Investment
About Us
Our Team
Office Locations
Careers
Search Properties
Advanced Search
Chicago Region
Phoenix Region
Salt Lake Region
Tenant Portal
Contact Us
Call: 630-250-9700
Close Menu
Jun
27
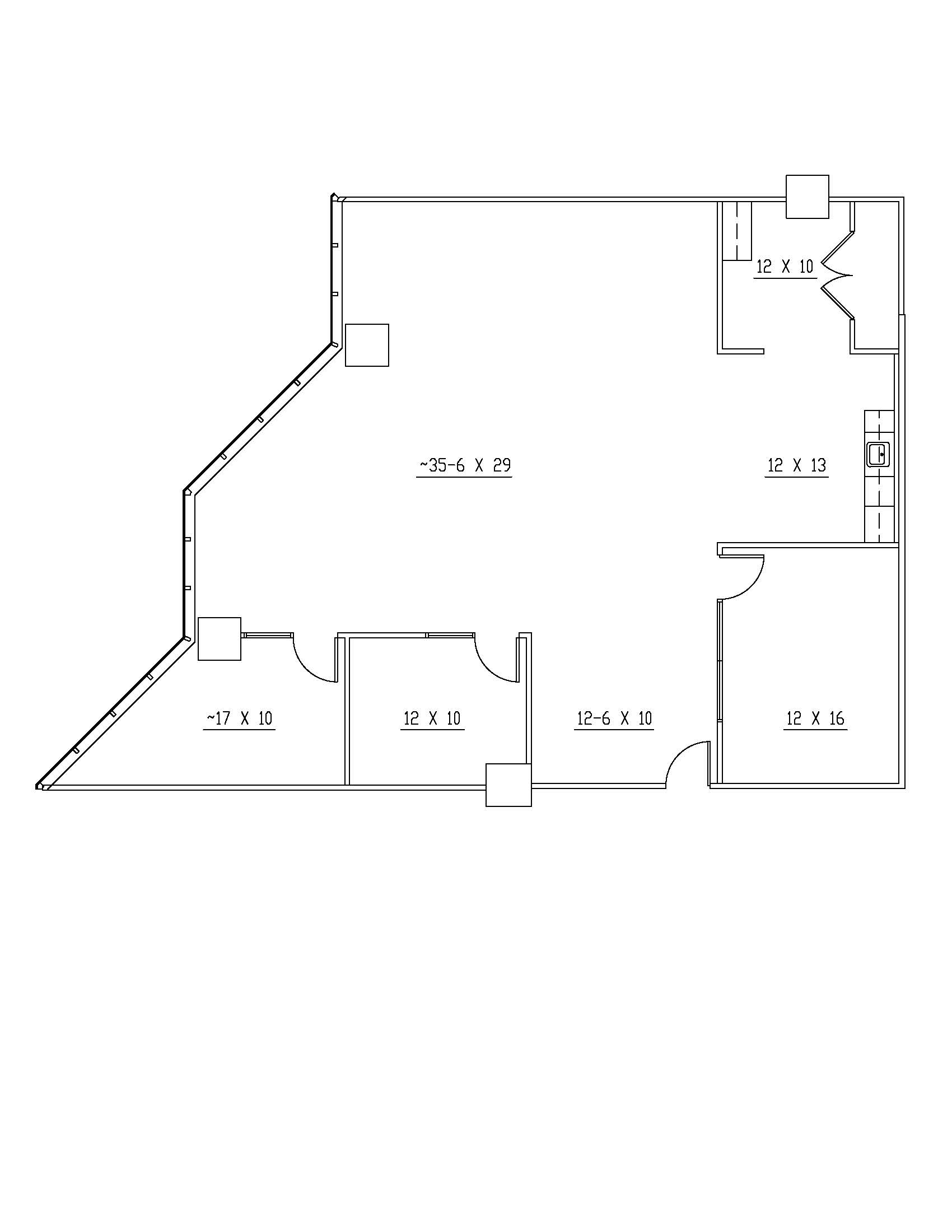
1 Lincoln 980 mkt 06.27.25-Model (002)
June 27
th
, 2025
SHARE
back to all news
Creating Value for Everyone. Tenants, Investors, & Communities.
Find Properties